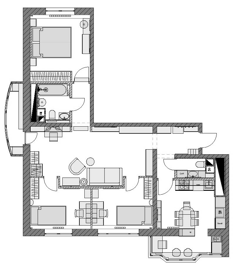
3-комнатная квартира г. Москва
Квартира в классическом стиле для семьи с 2 детьми. Задачей было выделить две отдельные детские и гостиную комнату
78 кв.м
Made on
Tilda