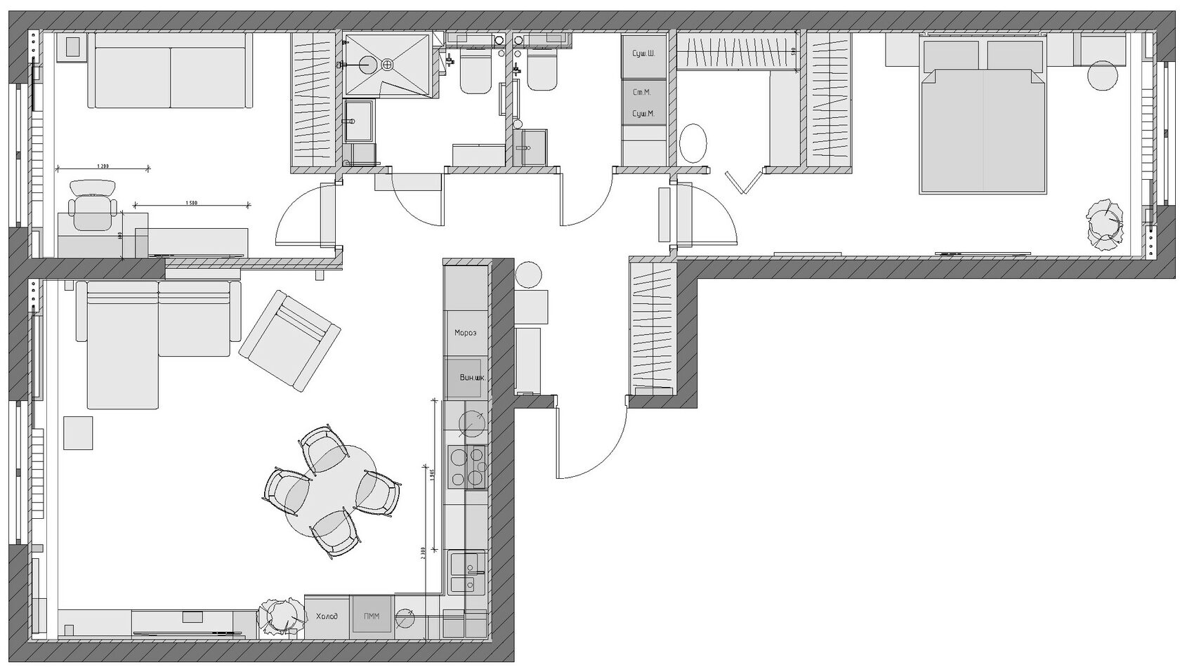
3-комнатная квартира ЖК «Дмитровский парк» г. Москва
Квартира в минималистичном стиле для семейной пары.
Кабинет проектировался с возможностью лёгкой переделки в детскую комнату в будущем.

77 кв.м
Made on
Tilda