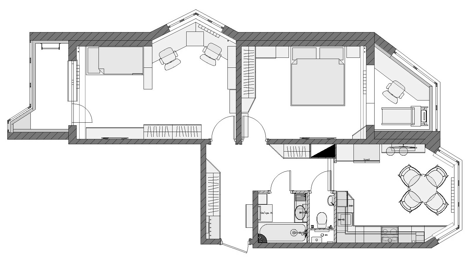
2-комнатная квартира г. Москва
Квартира в современном стиле для семьи с 2 детьми
68 кв.м
Made on
Tilda