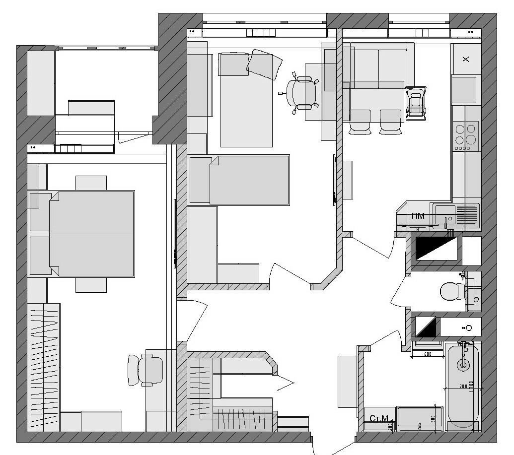
2-комнатная квартира г. Москва
Квартира в современном стиле для семьи с дочкой
60 кв.м
Made on
Tilda