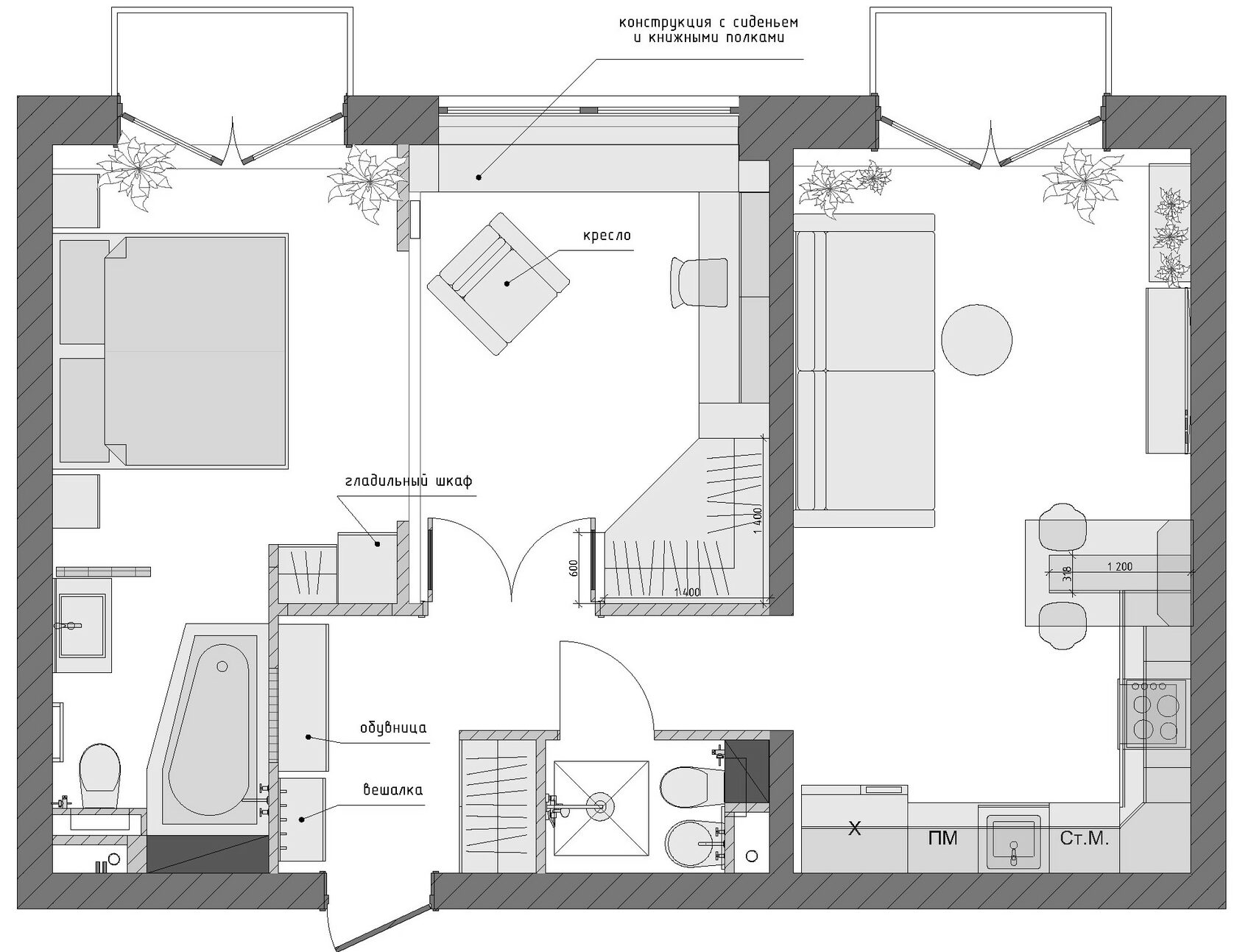
3-комнатная квартира ЖК «Западный порт» г. Москва
Квартира для пары без детей в средиземноморском стиле.
56 кв.м
Made on
Tilda