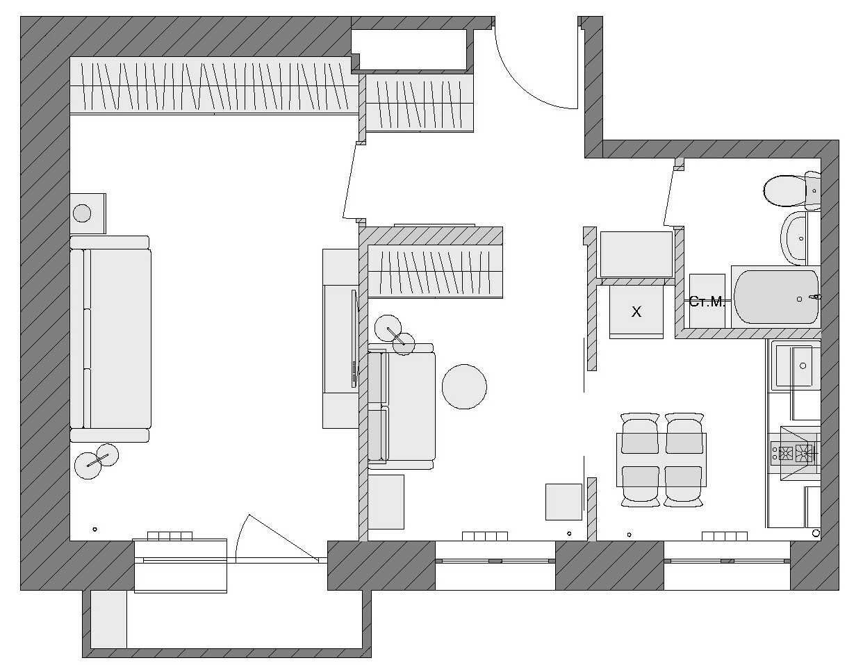
2-комнатная квартира г. Москва
Квартира в ретро стиле в старом фонде для дамы в возрасте
41 кв.м
Made on
Tilda