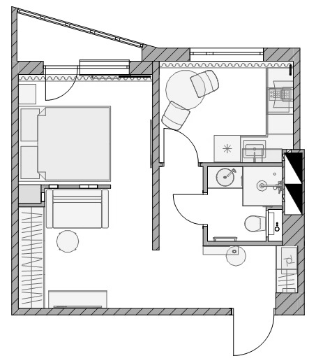
1-комнатная квартира г. Москва
Квартира в современном стиле для молодой пары
32 кв.м
Made on
Tilda